top of page

Residencial ProfitWay II
Rua Ver. Antonio Giacomassi, 269, Alto Boqueirão, Paraná, Brasil

Em construção
Frente para rua
70m²
2 Suítes
Sala, cozinha, lavabo e área de serviço no primeiro andar
1 vaga por unidade
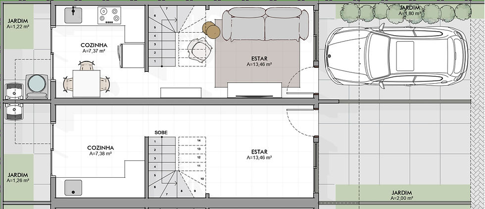
Planta
Área privativa de 70m²
Frente para rua
Área privativa de 53m²
Áreas internas
Área completa
bottom of page









